שלום,
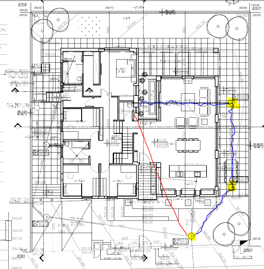
רציתי לבקש חוות דעת לגבי תכנון האינסטלציה של בית פרטי. ספציפית אני מעוניין בחוות דעת עבור השינוי שמוצגבקובץ המצורף - ביטול הקו הכחול (ביטול שוחות 4,5) וחיבור קו ישיר בין שירותי האורחים ישירות לנק' הביוב הראשית -שוחה 3.
היתרונות - (1) חסכון של 2 שוחות שאין להם הצדקה ממשית. (2) יותר אסתטי
החסרונות - (1) מעבר הקו מתחת לבית (למרות שגם בתכנון המקורי הקו עובר מתחת לסלון). (2) אורך קו הביוב הוא בערך 13 מ'.
אשמח לייעוץ מקצועי
תודה!!
גיל
חוות דעת לגבי תכנון אינסטלציה לבית פרטי
מנהלים: ג.אינסטלציה, קהילת פורום אינסטלציה
חוות דעת לגבי תכנון אינסטלציה לבית פרטי
- קבצים מצורפים
-
- תכנון אינסטלציה.PNG (163.62 KiB) נצפה 42457 פעמים
-
שחר כהן פורטל בתים
- מנהל מערכת הפורומים של "בתים"
- הודעות: 229
- הצטרף: 15/01/2006 - 17:23:05
- יצירת קשר:
Re: חוות דעת לגבי תכנון אינסטלציה לבית פרטי
גיל שלום,
השאלה ששאלת מקצועית מאוד ולכן יש לפנות לבעל מקצוע שייתן אפיון העבודה והצעת מחיר.
בעלי מקצוע מובחרים מתחום האינסטלציה, תכנון, איטום ועוד תמצא באינדקס שלנו. לקטג' אינסטלציה באינדקס לחץ כאן:
http://www.batim.org.il/indexprof/index ... AreaID=ALL
השאלה ששאלת מקצועית מאוד ולכן יש לפנות לבעל מקצוע שייתן אפיון העבודה והצעת מחיר.
בעלי מקצוע מובחרים מתחום האינסטלציה, תכנון, איטום ועוד תמצא באינדקס שלנו. לקטג' אינסטלציה באינדקס לחץ כאן:
http://www.batim.org.il/indexprof/index ... AreaID=ALL
שחר כהן - CEO פורטל בתים
שחר פיתוח ושיווק אתרים
https://www.s-p-a.org.il/
שחר פיתוח ושיווק אתרים
https://www.s-p-a.org.il/